ПСЛН 0,9-6-122

Чертеж изделия:
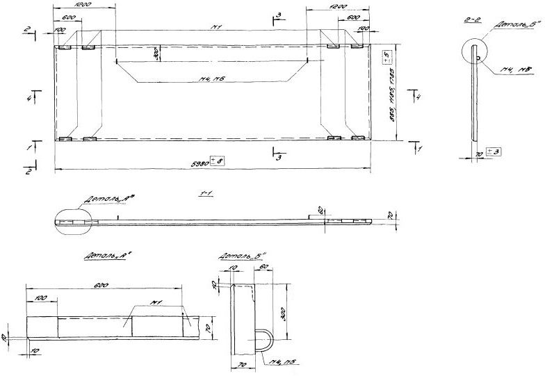
Чертеж ПСЛН 0,9-6-122
Характеристики изделия:
ПараметрЗначение
Длина5980 мм
Ширина70 мм
Высота885 мм
Масса710 кг
Нормативный документСерия 1.432-10

Сборные предварительно напряженные стеновые панели из легких бетонов для неотапливаемых промышленных зданий по Серии 1.432-10.

ПСЛН 0,9-6-122  Рядовая панель у температурного шва и в углу зданий по продольной стене, армированная сталью Вр-II.